102 YACHT HARBOR DRIVE 278PALM COAST, FL 32137




Mortgage Calculator
Monthly Payment (Est.)
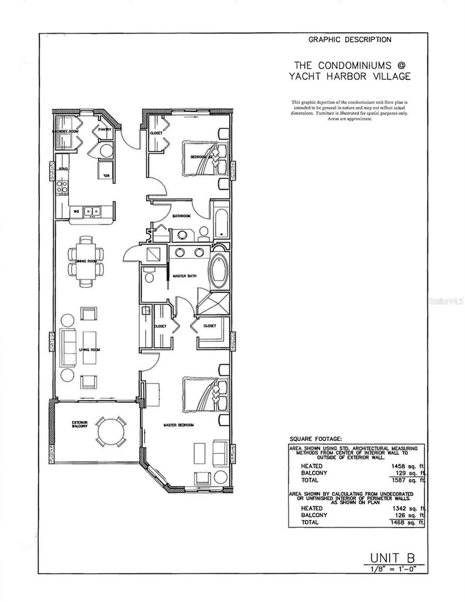
$1,638Experience the best of waterfront living in this beautifully appointed two-bed, two-bath condominium in the Yacht Harbor community. Located on the desirable northern end of the building, the residence enjoys wonderfully open water views, perfectly positioned to capture sweeping Intracoastal vistas and front-row views of boats gliding along the waterway as well as the open canal leading to the Intracoastal—an enviable setting rarely available. Boasting unusually generous water frontage and ideal proximity for dockage, the property provides a lifestyle defined by serenity and coastal charm. Inside, discover a superlative master suite with a private balcony, complemented by a second spacious bedroom and two full baths. Tile flooring throughout, 42" kitchen cabinets, granite countertops in both kitchen and baths, and an in-house laundry deliver comfort and convenience. Custom furnishings convey, making this a truly turnkey opportunity. Whether enjoying morning sunrises or peaceful evenings along the water, this unique residence inspires relaxation year-round. Residents may also opt for a Hammock Beach Club membership, unlocking an amenity-rich lifestyle including a state-of-the-art pool pavilion, fitness center, world-class spa, two championship golf courses, waterfront dining, and a private marina. A rare offering in Yacht Harbor—perfect for full-time living, seasonal escape, or investment.
| yesterday | Listing updated with changes from the MLS® | |
| 6 days ago | Price changed to $359,000 | |
| 7 days ago | Listing first seen on site |
Listing information is provided by Participants of the Stellar MLS. IDX information is provided exclusively for personal, non-commercial use, and may not be used for any purpose other than to identify prospective properties consumers may be interested in purchasing. Information is deemed reliable but not guaranteed. Properties displayed may be listed or sold by various participants in the MLS Copyright 2025, Stellar MLS.
Last checked: 2025-12-12 05:55 AM EST
Did you know? You can invite friends and family to your search. They can join your search, rate and discuss listings with you.